
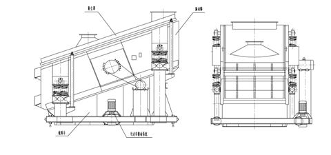
YA系列圆振动筛的适用范围:
YA系列圆振动筛是一种通用且已标准化的振动筛分设备,根据用途可分为轻型圆振动筛和重型圆振动筛,广泛应用于选矿、建材、电力、轻工和化工各行业对各种颗粒状和小块状散固体物料的干式分级;也可适用于煤、石灰石、碎石、砂砾、金属或非金属矿石及其他物料的筛选。筛箱运动轨迹为圆,筛机筛面有单层和双层两种结构形式,机体采用框架式结构,利用普通电机外拖动振动器使筛体沿激振力方向作周期限性往复振动,物料在筛面上连续作圆运动,从而达到筛分目的。
YA系列圆振动筛的结构及特点:
该系列设备主要由筛箱、筛网、振动器及减振弹簧等组成。振动器安装在筛箱侧板上,并由电动机通过三角皮带带动旋转,产生离心惯性力,迫使筛箱振动。如用户无特殊要求,YA和2YA型为纺织筛面,YAH型为冲孔板筛面,各类筛面均能满足筛分效率高、寿命长、不堵孔的要求。该系列筛机为座式安装。筛面倾角的调整可通过改变弹簧支座位置高度来实现。电动机可安装在筛框的左侧,也可安装在筛框的右侧,如无特殊要求,厂商按物料运动方向的右侧安装供货。
YA系列圆振动筛具有筛分效率高、结构科学合理、整机强度和刚度高以及运行平稳、坚固耐用、噪音低、维修方便等特点。
根据用户不同需求,该系列筛机可选配金属丝编织网、棒条、铸造、焊接、冲孔等多种形式的筛面,以满足不同行业需求。
主要技术参数:
|
型号
|
层数
|
面积
/m 2
|
筛面
|
给料粒度
/mm
|
处理量
/t.h- 1
|
振次
/min-1
|
双振幅
/mm
|
电动机
|
外型尺寸(长x宽x高)
/mm
|
总质量
/kg
|
每支点动负荷
/N
|
拆分件
|
|
||||||
|
倾角
/( °)
|
筛孔尺寸
/mm
|
结构
|
型号
|
功率
/KW
|
工作时
|
起停机时
|
外型尺寸(长x宽x高)
/mm
|
质量
/kg
|
|||||||||||
|
给料端
|
排料端
|
给料端
|
排料端
|
||||||||||||||||
|
YA1848
|
1
|
8.6
|
20
|
6-50
|
编织
|
≤ 200
|
150-490
|
845
|
9.5
|
Y160L-4
|
15
|
4904x3020x2861
|
6289
|
± 847
|
± 847
|
±4234
|
±4234
|
5374x2415x1128
|
3789
|
|
2YA1848
|
2
|
8.6
|
20
|
6-50
|
编织
|
≤ 200
|
150-490
|
845
|
9.5
|
Y160L-4
|
15
|
4904x3020x2861
|
6624
|
± 874
|
± 874
|
±4234
|
±4234
|
5530x2415x1128
|
4397
|
|
YAH1848
|
1
|
8.6
|
20
|
30-150
|
编织
|
≤ 400
|
385-1000
|
755
|
11
|
Y160L-4
|
15
|
4904x3020x2943
|
7122
|
± 1392
|
± 1392
|
±6958
|
±6958
|
5398x2415x1192
|
4520
|
|
2YAH1848
|
2
|
8.6
|
20
|
30-150
6-50
|
上冲孔
下编织
|
≤ 400
|
385-1000
|
755
|
11
|
Y160L-4
|
15
|
4904x3020x2943
|
7740
|
± 1392
|
± 1392
|
±6958
|
±6958
|
5562x2415x1192
|
5146
|
|
YA2148
|
1
|
10
|
20
|
6-50
|
编织
|
≤ 200
|
175-570
|
748
|
9.5
|
Y180M-4
|
18.5
|
4945x3423x3515
|
9033
|
± 1675
|
± 1675
|
±8379
|
±8379
|
5579x2720x1570
|
6069
|
|
2YA2148
|
2
|
10
|
20
|
6-50
|
编织
|
≤ 200
|
175-570
|
748
|
9.5
|
Y180L-4
|
22
|
4945x3463x3515
|
10532
|
± 1675
|
± 1675
|
±8379
|
±8379
|
5707x2720x1570
|
7059
|
|
YAH2148
|
1
|
10
|
20
|
30-150
|
冲孔
|
≤ 400
|
445-1200
|
708
|
11
|
Y180M-4
|
18.5
|
4945x3423x3501
|
10430
|
± 2889
|
± 2889
|
±14445
|
±14445
|
5680x2720x1544
|
7131
|
|
2YAH2148
|
2
|
10
|
20
|
30-150
6-50
|
上冲孔
下编织
|
≤ 400
|
445-1200
|
708
|
11
|
Y180L-4
|
22
|
6092x3463x3501
|
11190
|
± 2889
|
± 2889
|
±14445
|
±14445
|
5680x2720x1544
|
8054
|
|
YA2160
|
1
|
12.6
|
20
|
6-50
|
编织
|
≤ 200
|
220-715
|
748
|
9.5
|
Y180M-4
|
18.5
|
6092x3423x3674
|
9926
|
± 2495
|
± 2495
|
±12475
|
±12475
|
6772x2720x1525
|
6893
|
|
2YA2160
|
2
|
12.6
|
20
|
6-50
|
编织
|
≤ 200
|
220-715
|
748
|
9.5
|
Y180L-4
|
22
|
6092x3463x3674
|
11249
|
± 2495
|
± 2495
|
±12475
|
±12475
|
6907x2720x1525
|
8303
|
|
YAH2160
|
1
|
12.6
|
20
|
30-150
|
冲孔
|
≤ 400
|
565-1400
|
708
|
11
|
Y200L-4
|
30
|
6116x3619x3849
|
12490
|
± 2889
|
± 2889
|
±14445
|
±14445
|
6853x2720x1646
|
9751
|
|
2YAH2160
|
2
|
12.6
|
20
|
30-150
6-50
|
上冲孔
下编织
|
≤ 400
|
565-1400
|
708
|
11
|
Y200L-4
|
30
|
6116x3619x3849
|
13858
|
± 2889
|
± 2889
|
±14445
|
±14445
|
6973x2720x1646
|
10517
|
|
YA2448
|
1
|
11.5
|
20
|
6-50
|
编织
|
≤ 200
|
200-650
|
748
|
9.5
|
Y180M-4
|
18.5
|
4945x3728x3473
|
9834
|
± 2495
|
± 2495
|
±12475
|
±12475
|
5571x3025x1541
|
6668
|
|
YAH2448
|
1
|
11.5
|
20
|
30-150
|
冲孔
|
≤ 400
|
515-1300
|
708
|
11
|
Y200L-4
|
30
|
4970x3925x3638
|
11830
|
± 2889
|
± 2889
|
±14445
|
±14445
|
5633x3025x1646
|
8574
|
|
2YAH2448
|
2
|
11.5
|
20
|
30-150
6-50
|
上冲孔
下编织
|
≤ 400
|
515-1300
|
708
|
11
|
Y200L-4
|
30
|
4970x3925x3638
|
13012
|
± 2889
|
± 2889
|
±14445
|
±14445
|
5743x3025x1646
|
9760
|
|
YA2460
|
1
|
14.4
|
20
|
6-50
|
编织
|
≤ 200
|
250-810
|
748
|
9.5
|
Y200L-4
|
30
|
6091x3925x3850
|
12240
|
± 2495
|
± 2495
|
±12475
|
±12475
|
6827x3025x1646
|
8649
|
|
2YA2460
|
2
|
14.4
|
20
|
6-50
|
编织
|
≤ 200
|
250-810
|
748
|
9.5
|
Y200L-4
|
30
|
6091x3925x3850
|
13583
|
± 2495
|
± 2495
|
±12475
|
±12475
|
6962x3025x1646
|
10134
|
|
YAH2460
|
1
|
14.4
|
20
|
30-150
|
冲孔
|
≤ 400
|
645-1500
|
708
|
11
|
Y200L-4
|
30
|
6091x3925x3846
|
13096
|
± 2889
|
± 2889
|
±14445
|
±14445
|
6827x3025x1646
|
9813
|
|
2YAH2460
|
2
|
14.4
|
20
|
30-150
6-50
|
上冲孔
下编织
|
≤ 400
|
645-1500
|
708
|
11
|
Y200L-4
|
30
|
6091x3925x3846
|
14455
|
± 2889
|
± 2889
|
±14445
|
±14445
|
6950x3025x1646
|
11285
|